«Спецавтотранс» рассчитывает на 270 тыс. кв. м недвижимости на Куршской косе. Птицы будут реагировать даже на освещенность стройплощадки апартов. Эксперты ОВОС посчитали, что «качество местообитаний птиц значительно не ухудшится».
Региональное министерство природных ресурсов проводит общественные обсуждения предварительных материалов оценки воздействия на окружающую среду (ОВОС) по проекту первого этапа строительства гостиничного комплекса на насыпном острове в поселке Рыбачий на Куршской косе. Процедура стартовала 22 апреля и продлится вплоть до 21 мая. Проектную документацию готовило ООО «Морречтранспроект». Инициированы общественные слушания по проекту с очной встречей и публичным обсуждением, они назначены на 6 мая в 11:00 в КДЦ в Рыбачьем.
Замечания и предложения касательно документации проекта теперь можно отправить онлайн через интернет-приемную минприроды или оставить в журнале учета в рабочее время по будням по месту экспозиции на ул. Донского, 7а, каб. № 639. Также можно отправлять замечания в письменном виде в адрес минприроды: 236022, г. Калининград, ул. Дмитрия Донского, 7а.
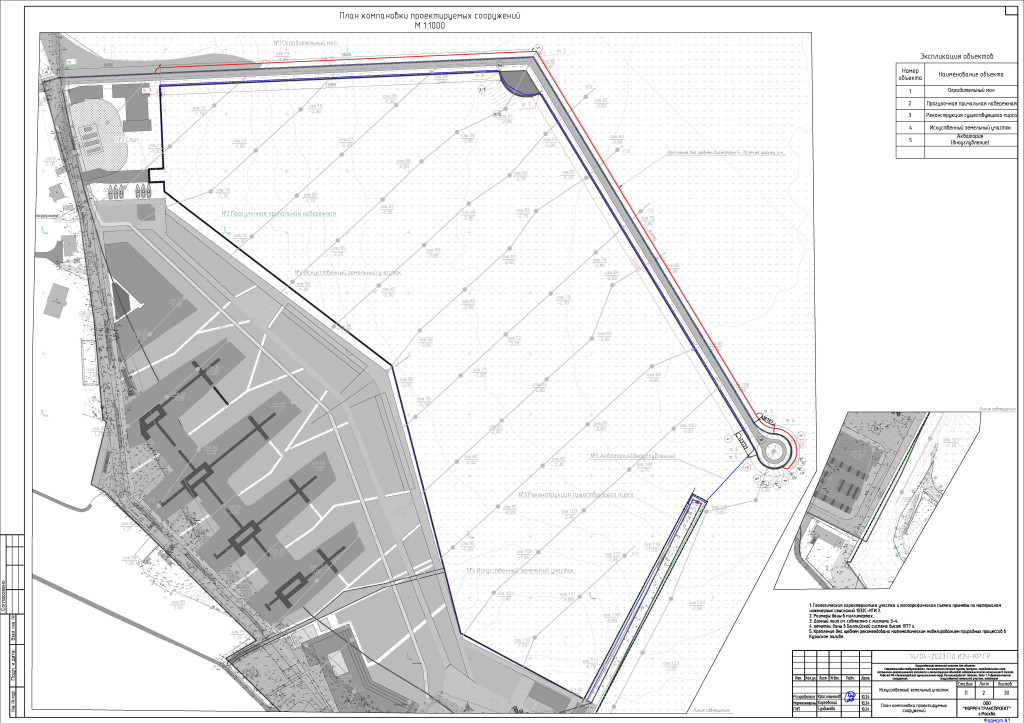
Первый этап в исполнении компании-инвестора «Спецавтотранс» включает работы непосредственно в акватории Куршского залива, реконструкцию гидротехнических сооружений и отсыпку искусственного земельного участка. Мероприятия потребовались для строительства элитного комплекса апартаментов, гостиницы со SPA, морским вокзалом и международным пунктом пропуска.
Для создания искусственного острова инвестор под все будущие постройки задействует территорию своего землевладения 39:05:000000:224, которое ранее имело отношение к рыбколхозу «Труженик моря», и примыкающую к нему акваторию залива. Остров появится путем обратной засыпки вследствие проведения дноуглубительных работ. Всего в Рыбачьем планируется извлечь и поднять порядка 598,6 тыс. куб. м донных грунтов. Вся масса будет осушена до требуемых параметров, перемешана с привозным песчаным грунтом, и из нее сформируют новый участок площадью 7,95 га. Юридически землевладение будет создано путем перевода земель водного фонда, находящихся в собственности РФ и используемых в соответствии с договором водопользования от ноября 2022 года, в состав земель населенного пункта поселка Рыбачий.

Оценка воздействия на животный мир проводилась пока что конкретно для первого этапа отсылки участка и создания гидротехнических сооружений. Эколого-орнитологическое обследование выполнял в рамках договора с Федеральным государственным бюджетным учреждением науки Зоологический институт Российской академии наук в соответствии с данными, полученными в ходе осенней миграции птиц 2025 года. В разделе 3.6.2.1 Оценка воздействия на животный мир в период строительства говорится, что натурные обследования специалистов, привлеченных компанией «Спецавтотранс», установили, что на участке строительства нет мест обитания редких видов животных и птиц, в том числе занесенных в Красную Книгу Калининградской области и Российской Федерации».
Однако в разделе 2.2.8.2 Орнитофауна указано, что в зоне планируемого строительства было отмечено 15 охраняемых видов птиц,включенных в Красную книгу Калининградской области (КККО) (2010) и Красную книгу Российской Федерации (ККРФ) (2021): это скопа, черный коршун, серый гусь, беркут, орлан-белохвост, галстучник, чернозобик, большой кроншнеп, малая чайка, средний пестрый дятел, кулик-сорока, серощекая поганка.
В части воздействия на орнитофауну Куршской косы в тексте ОВОС отмечается, что подавляющее большинство зарегистрированных особей (89 %) летели на высотах до 60 метров. Доля птиц, мигрирующих на высотах до 15 метров, составляла значимые 35 %. Тем не менее привлеченные эксперты сделали вывод о том, что первый этап строительства туркластера «не окажет значимого воздействия на орнитофауну региона ввиду того, что суда на акватории и механизмы на стройплощадке, не превышают высот миграции птиц в районе намечаемой деятельности».
Среди птиц, которые летят на малых высотах над участком строительства апартаментов, преобладают воробьиные, которые также останавливаются на нем для отдыха и поиска корма, проводя много времени и перемещаясь на малых высотах от самой земли до высоты крон произрастающих здесь кустов и деревьев. Особенно крупные скопления формировали свиристели, трясогузки, синицы и желтоголовые корольки, в большом числе кормящиеся на участке исследований. Именно они оказываются в зоне наибольшего риска. Также в исследовании Зоологического института указано, что постоянно держались в зоне планируемого строительства и формировали многочисленные скопления в период миграции ласточки: береговушки, деревенские и воронки.
На воде вблизи зоны под застройку постоянно пребывали лебеди, чомги, кряквы, бакланы. Особо отмечается, что зона застройки входит в миграционный коридор цапель, которые пролетали над ней практически на протяжении всего периода наблюдений.

В части фактора освещенности строительной площадки ученые РАН сделали однозначный вывод о том, что белый свет в наибольшей степени привлекает и дезориентирует птиц в ночное время, чем красный, синий или зеленый. Однако освещенность стройплощадки, создаваемая LED лампами цветных светодиодов, была ниже, чем у белого света.
Как указано в материалах ОВОС, птицы преимущественно реагировали на освещенность площадки со стороны Куршского залива при подлете к береговой линии. При этом они существенно снижали высоту. Однако в данной ситуации ученые не смогли точно определить причину такого поведения. Возможно, птицы стремились сесть на сушу после пересечения Куршского залива либо были привлечены не только освещением площадки, но и освещением поселка в целом. Однако далее в тексте ОВОС делается парадоксальный вывод о том, что «фактор освещенности площадки строительства является локальным и не может оказать значимого воздействия на орнитофауну», при этом игнорируются практические данные о том, что белое освещение как стройплощадки, так и будущих построек однозначно будет ослеплять серьезную долю птиц, мигрирующих или летящих со стороны залива и косы на низкой высоте.
«Даже при относительно кратковременных и локальных воздействиях в зоне намечаемой деятельности, в той или иной степени, вероятно, снижение плотности населения и численности птиц. Однако вероятность глобальной трансформации среды обитания птиц в районе намечаемой деятельности, будет незначительна», — говорится в тексте оценки.
Признавая сам факт однозначного воздействия планируемой стройки на популяции перелетных птиц, привлеченные застройщиком эксперты сделали еще один парадоксальный вывод о том, что «качество местообитаний птиц значительно не ухудшится», а «воздействия на орнитофауну будут носить в основном локальный и кратковременный характер».
Также приводится предположение о том, что «все основные прогнозируемые изменения в состоянии птиц носят обратимый характер и после прекращения работ ключевые параметры популяций птиц вернутся в фоновое состояние».
«Не ожидается также каких-либо долговременных последствий для орнитоценозов и в отдаленной перспективе», — резюмируют эксперты, не подкрепляя этот вывод более серьезными исследованиями.
Что касается водных биоресурсов, то в тексте ОВОС также говорится о том, что ущерб будет якобы минимальным при условии выполнения всех предусмотренных природоохранных мероприятий и соблюдения сроков. В период нереста с 20 апреля по 20 июня все строительные работы в Рыбачьем в акватории залива должны быть запрещены. При этом на территориях, прилегающих к участку под строительство апартов, марины и морского вокзала, отсутствуют рыбоохранные и рыбохозяйственные заповедные зоны.
В числе негативных последствий первого этапа строительства туркластера приводится «кратковременное отторжение дна Куршского залива и ручья», «образование шлейфов взвеси», «забор и отгораживание объемов воды». Объем прогнозируемых потерь в части рыбных ресурсов оценен всего в 1675,86 кг, поскольку «в период проведения строительных работ икра и ранняя молодь рыб отсутствует».
Взамен необходимо выпустить в залив 579,89 тыс. единиц мелкой молоди сига, а также еще 16,33 тыс. единиц более крупной молоди этого же вида рыб. Стоимость зарыбления в указанных объемах в ценах 2023 года по прайсу калининградской компании «Полекс-Аква» составила 49,2 млн руб.

Первый этап строительства туркластера также включает обустройство яхтенной марины перед гостинично-рекреационным комплексом «Спецавтотранса». Ее акватория будет ограждена от залива новым протяженным оградительным молом и реконструируемым существующим пирсом со входом на юге в юго-восточной части. Площадь марины составит почти 13 га при протяженности 570 метров и ширине от 215 до 280 метров.
Длина оградительного мола по западной стороне составит 742 метра. В качестве основного технического решения для конструкции мола будет принята конструкция из свайной анкерно-ригельной системы (два ряда свай) с традиционными стенками из трубошпунта. Тело мола будет засыпано щебнем.
Также «Спецавтотранс» планирует оборудовать прогулочную причальную набережную длиной 688 метров и шириной 20 метров.
По мнению инвестора, заявленные работы по созданию искусственного участка вблизи берега Куршской косы обеспечат «инженерную защиту территории поселка Рыбачий от затопления и подтопления», а также «предотвратят эрозионные процессы береговой линии Куршского залива».
Строительство объектов рекреационного назначения на насыпном острове отнесено инвестором уже ко второму этапу, который аналогично будет проходить оценку ОВОС. Высота апартаментов на искусственном острове в акватории Куршского залива ранее заявлялась на уровне не менее 21–23 метра.

В документации ОВОС для первого этапа стройки на текущий момент заявлен апарт-отель смешанного типа высотой 3–5 этажей общей площадью 100 тыс. кв. м, 5-этажный апарт-отель семейного типа общей площадью 17,5 тыс. кв. м, 5-этажная гостиница площадью 11 тыс. кв. м со SPA-комплексом и тренажерным залом, открытые бассейны на 520 и 1,2 тыс. кв. м, теннисный корт и мини-гольф на 260 кв. м, крытая парковка с офисами служб на 24 тыс. кв. м, рыбный рынок и стритфуд на 1,9 тыс. кв. м, речной вокзал и пункт пропуска, рестораны с террасами на 10 тыс. кв. м, пункт охраны комплекса на 100 тыс. кв. м, два типа домов на понтонах на 260 кв. м и 400 кв. м, гостиница на воде площадью 4,8 тыс. кв. м, еще один отдельный ресторан с террасой площадью 600 кв. м и туалетами на первом этаже на 300 кв. м. Всего не менее 270 тыс. кв. м различной недвижимости.
При этом порт, ремонтные мастерские для катеров и яхт в Рыбачьем займут всего 100 кв. м, а международный речной пункт пропуска — 200 кв. м.
После общественных обсуждений оценки воздействия на окружающую среду инвестор должен пройти обязательную государственную экологическую экспертизу.
По данным сервиса Rusprofile, с января 2022 года компания-инвестор туркластера в Рыбачьем «Спецавтотранс» в равных долях принадлежит соучредителю ООО «Карьер Краснолесье» и ООО «Калининградское морское пароходство» Ангелине Шапловой и владельцу алкогольного бизнеса Василию Тизларишвили. До 2022 года среди учредителей «Спецавтотранса» был нынешний председатель совета депутатов Гвардейска Игорь Шаплов. Ангелина Шаплова является его супругой. «Спецавтотранс» специализируется на деятельности автомобильного грузового транспорта и услугах по перевозкам. Пост гендиректора занимает Ирина Жукова с ИНН Чукотки. Выручка юрлица в 2025 году составила всего 215 тыс. руб., убыток — 15 млн руб. В компании официально трудоустроен 1 сотрудник.

Заявленный проект «Спецавтотранса» с насыпным островом для апарт-отелей получил в народе название «стена смерти», поскольку туркластер окажется на маршруте крупнейшего Беломоро-Балтийского пути миграции миллионов птиц. По мнению ученых, апарты высотой до 21 метра будут создавать риски смерти до 15 тыс. перелетных птиц в сутки в период ежегодных весенне-осенних миграций.
RUGRAD публиковал подробный материал «Миллионы смертей на вашей совести» о том, почему сообщество экологов и орнитологов категорически против реализации проекта компании «Спецавтотранс» на Куршской косе. В материале «Коса прирастет островом с апартами и гостиницами» портал рассказывал о планах инвестора.
В декабре 2025 года RUGRAD писал о том, как компании «Спецавтотранс» через суд удалось зафиксировать увеличение площади единого землевладения с 5,64 до 6,71 га и реальные границы участка для строительства апартов на Куршской косе.